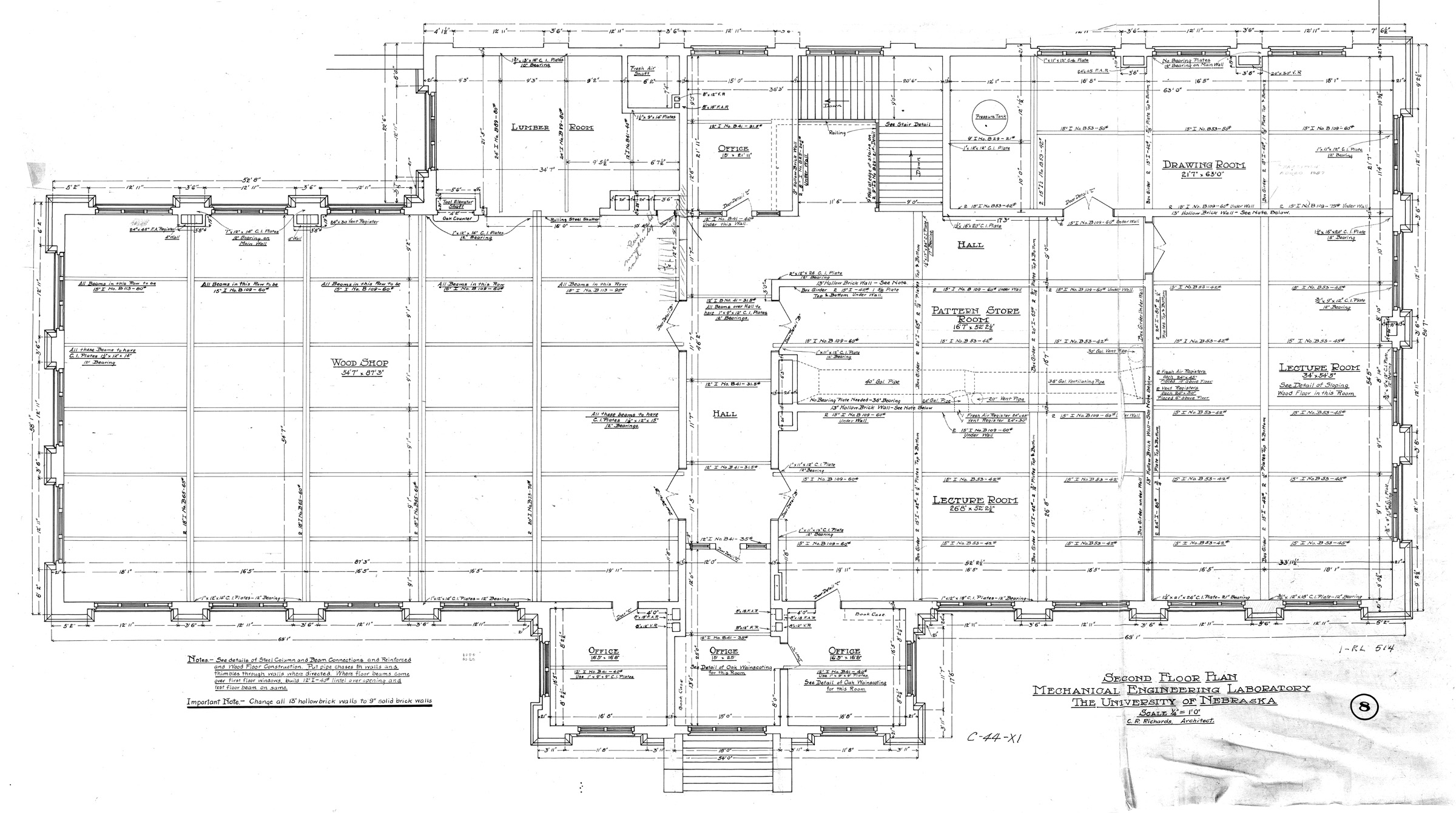
Mechanical Engineering Laboratories (Richards) Building Plans
- Title
- Mechanical Engineering Laboratories (Richards) Building Plans
- Date
- 1908
- Description
- Second Floor Plan Year: 1908
- Source
- UNL Facilities Management
- Is Part Of
- City Campus (1869-1909)
- Rights
- To inquire about usage, please contact Archives & Special Collections, University of Nebraska-Lincoln Libraries. These images are for educational use only. Not all images are available for publication.
- Local URL
- building-plans\mechanical-eng_002.jpg

