Skip to main content
Advanced Search
UNL Historic Buildings
City Campus 1896-1909
City Campus 1909-1939
City Campus 1940-1965
East Campus 1896-1914
Advanced Search
Advanced Search
Historic Buildings - City Campus (1869-1909)
Title
Historic Buildings - City Campus (1869-1909)
Items
Showing 1 to 25 of 116 results
Page
of 5
Created
Resource class
Title
Ascending
Descending
Sort
Advanced search
Charles Morrill
Charles Morrill
City Campus 1869-1909
photograph of UNL city campus
Mechanic Arts Hall
As remodeled Stout Hall
Mechanic Arts Hall
Fire of 1909. South facade with greenhouses.
Mechanic Arts Hall
Domestic Science class prior to relocation to Home Economics building in 1909.
Mechanic Arts Hall
North Facade
City Campus Map
map
City Campus Legend
UNL city campus, 1913
Mechanical Engineering Laboratories (Richards) Building Plans
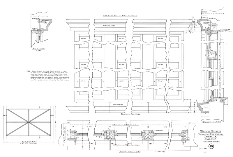
Window Details Year: 1908
Mechanical Engineering Laboratories (Richards) Building Plans
Window Details Year: 1908
Mechanical Engineering Laboratories (Richards) Building Plans
Staircase Layout Year: 1908
Mechanical Engineering Laboratories (Richards) Building Plans
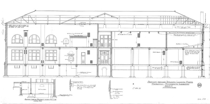
Building Section Year: 1908
Mechanical Engineering Laboratories (Richards) Building Plans
East Elevation Year: 1908
Mechanical Engineering Laboratories (Richards) Building Plans
North Elevation Year: 1908
Mechanical Engineering Laboratories (Richards) Building Plans
South Elevation Year: 1908
Mechanical Engineering Laboratories (Richards) Building Plans
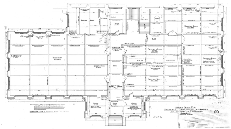
Second Floor Plan Year: 1908
Mechanical Engineering Laboratories (Richards) Building Plans
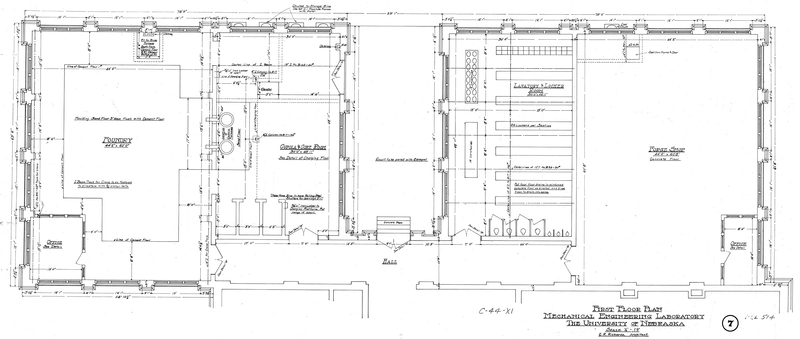
First Floor Plan Year: 1908
Mechanical Engineering Laboratories
Current image of (now Richards Hall)
Mechanical Engineering Laboratories
Current image of (now Richards Hall)
Mechanical Engineering Laboratories
Woodworking Shop
Mechanical Engineering Laboratories
Mechanical Engineering Laboratories
The Temple
The Temple
The Temple
The Temple
The Temple
The Temple
Museum (Old)
Museum (Old)
Showing 1 to 25 of 116 results
Page
of 5