Brace Laboratory of Physics Building Plans
- Title
- Brace Laboratory of Physics Building Plans
- Date
- 1904
- Description
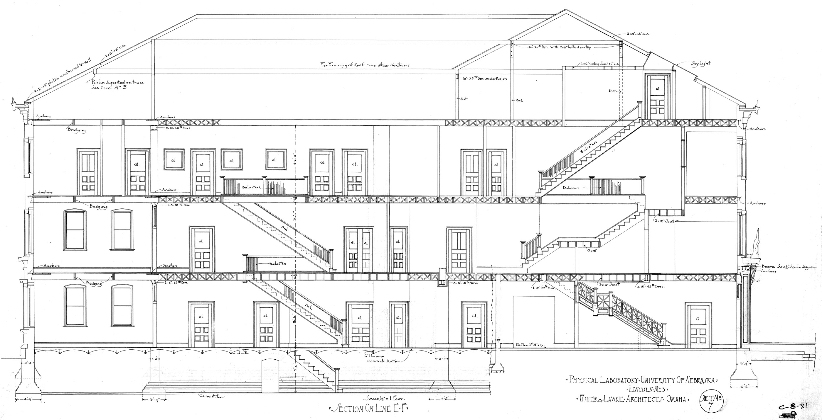
- Building Section Year: 1904
- Source
- UNL Facilities Management
- Is Part Of
- City Campus (1869-1909)
- Rights
- To inquire about usage, please contact Archives & Special Collections, University of Nebraska-Lincoln Libraries. These images are for educational use only. Not all images are available for publication.
- Local URL
- building-plans\brace-hall_007.jpg
- Site pages
- Brace Laboratory of Physics Building Plans

