Description: First Floor Plan
Year: 1916
Source: UNL Facilities Management
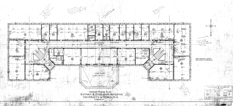
Description: Second Floor Plan
Year: 1916
Source: UNL Facilities Management
Description: Third Floor Plan
Year: 1916
Source: UNL Facilities Management
Description: North and South Elevations
Year: 1916
Source: UNL Facilities Management
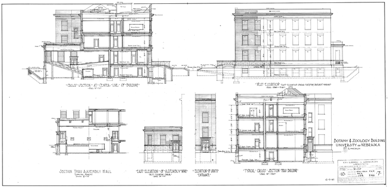
Description: East and West Elevations and Building Sections
Year: 1916
Source: UNL Facilities Management
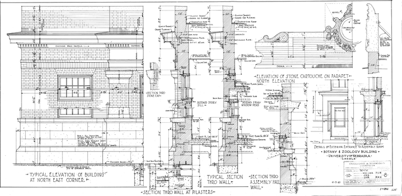
Description: Exterior Detail
Year: 1916
Source: UNL Facilities Management
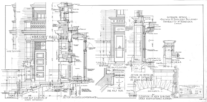
Description: Exterior Detail
Year: 1916
Source: UNL Facilities Management






