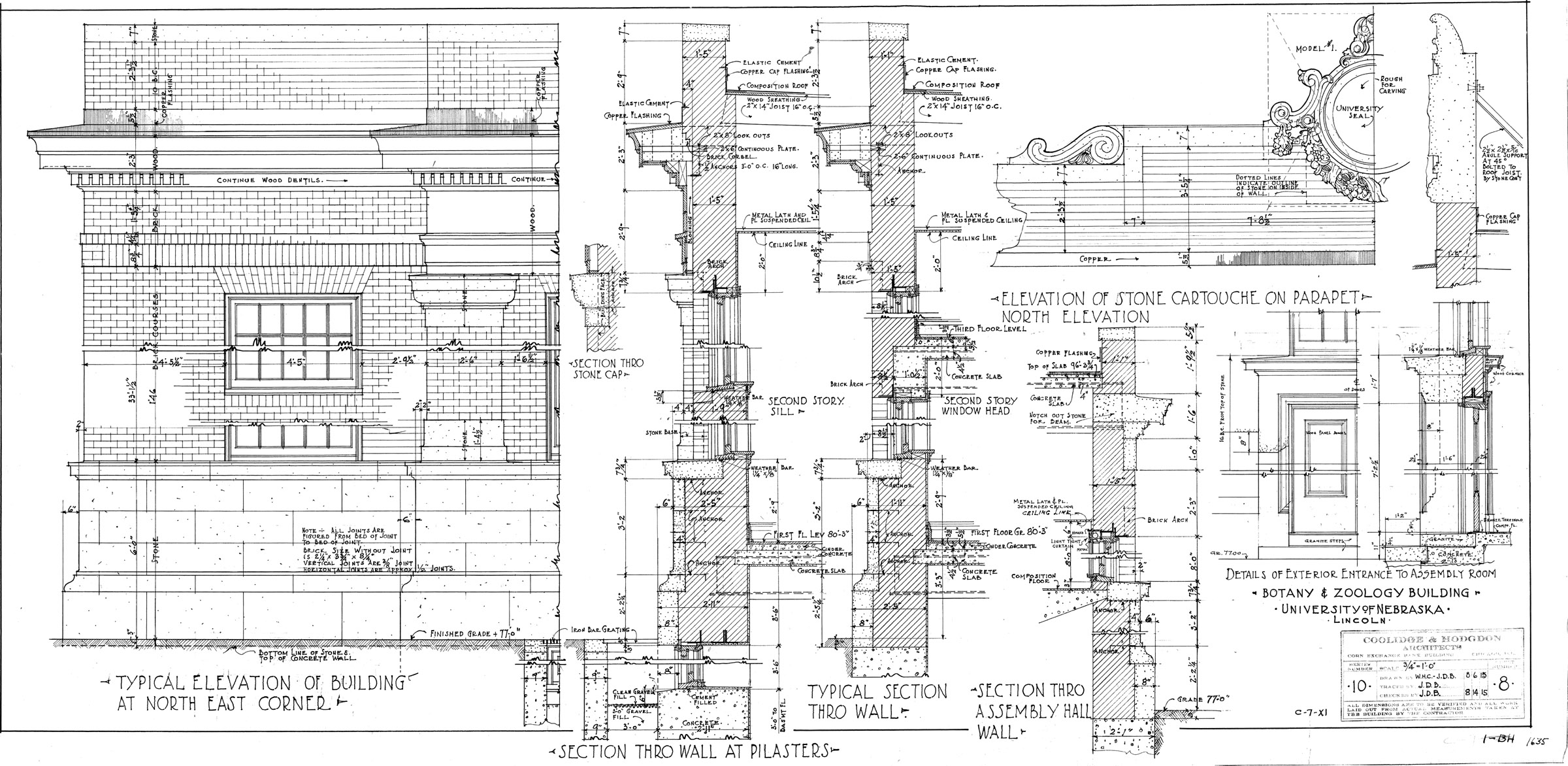
Bessey Hall
- Title
- Bessey Hall
- Date
- 1916
- Description
- Description: Exterior Detail Year: 1916
- Source
- UNL Facilities Management
- Is Part Of
- City Campus (1910-1939)
- Rights
- To inquire about usage, please contact Archives & Special Collections, University of Nebraska-Lincoln Libraries. These images are for educational use only. Not all images are available for publication.
- Local URL
- bessy_hall_006.jpg
- Site pages
- Bessey Hall Building Plans
- Media
-
Bessey Hall
