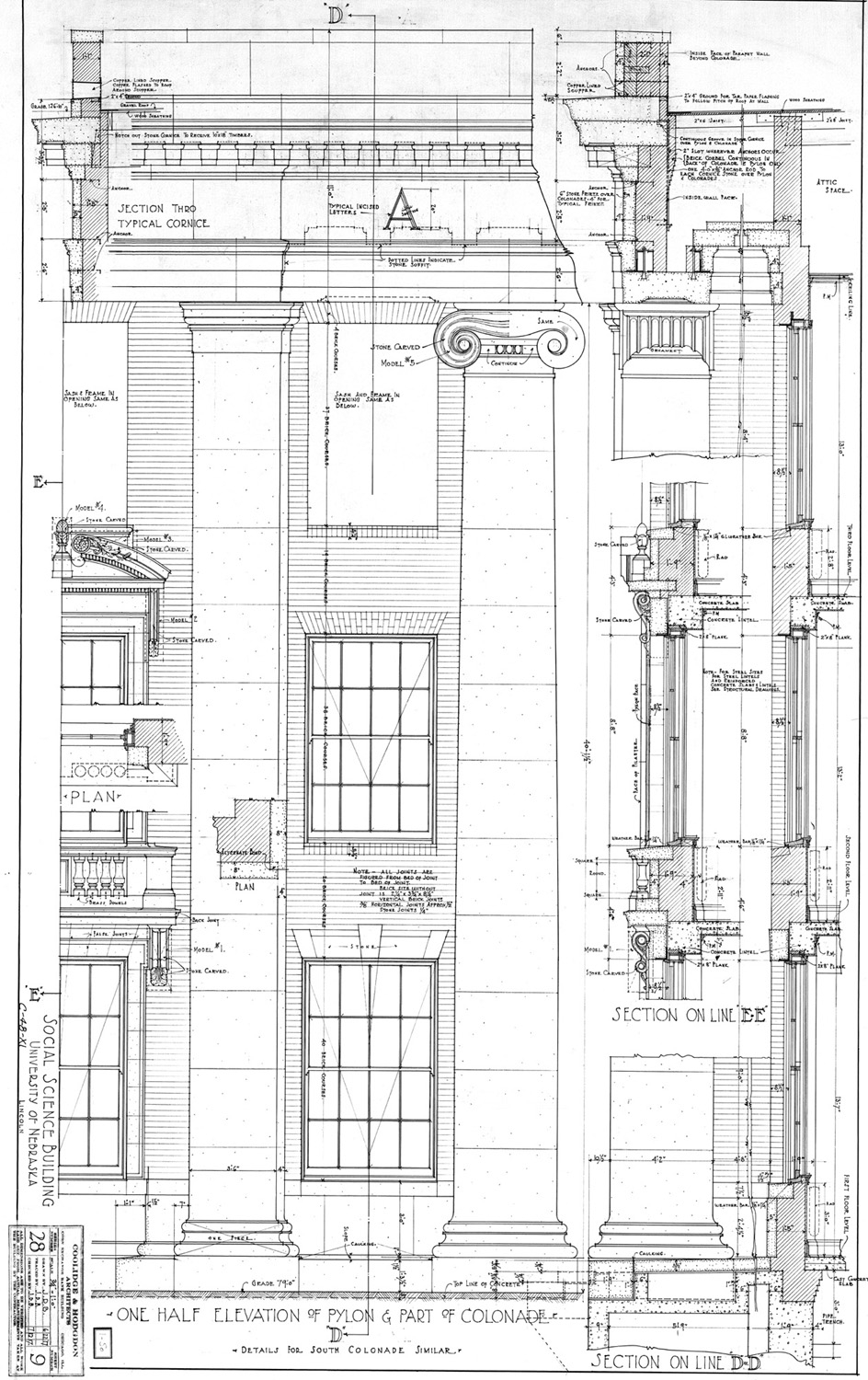
Social Sciences Hall
- Title
- Social Sciences Hall
- Date
- 1917
- Description
- Description: Elevation Details Year: 1917
- Source
- UNL Facilities Management
- Is Part Of
- City Campus (1910-1939)
- Rights
- To inquire about usage, please contact Archives & Special Collections, University of Nebraska-Lincoln Libraries. These images are for educational use only. Not all images are available for publication.
- Local URL
- social_sciences_008.jpg
- Site pages
- Social Sciences Hall (CBA) Building Plans
- Media
-
Social Sciences Hall
