Law College (Old)
- Title
- Law College (Old)
- Date
- 1912
- Description
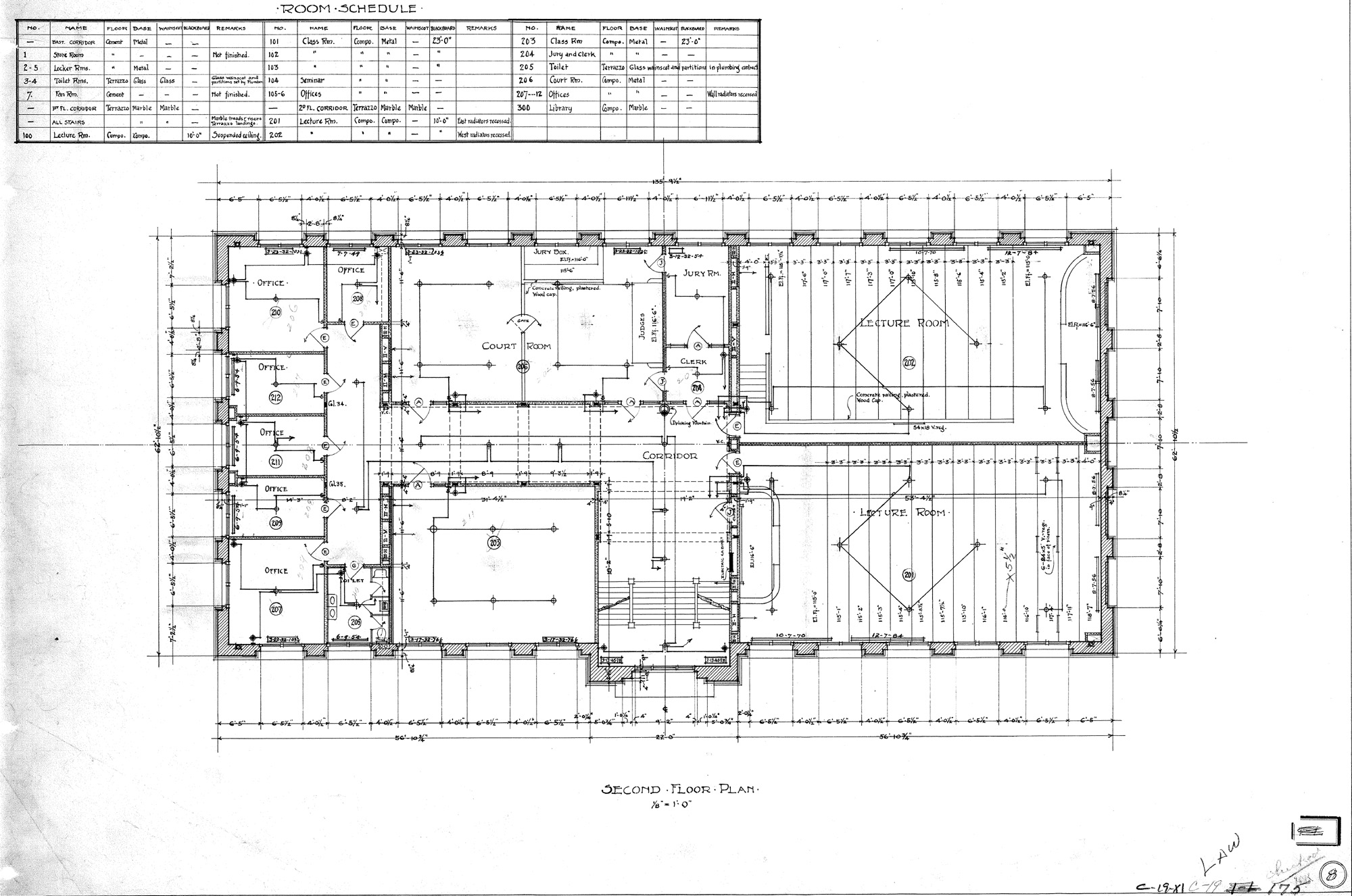
- Description: Second Floor Plan Year: 1912
- Source
- UNL Facilities Management
- Is Part Of
- City Campus (1910-1939)
- Rights
- To inquire about usage, please contact Archives & Special Collections, University of Nebraska-Lincoln Libraries. These images are for educational use only. Not all images are available for publication.
- Local URL
- law_college_003.jpg
- Site pages
- Law College (Old) Plans
- Media
-
Law College (Old)
