Historic Buildings - City Campus (1910-1939)

Items

The Coliseum
The Coliseum
The Coliseum
Postcard
Coliseum
Postcard
Early postcard view.
Memorial Stadium
Early postcard view.
Final game on second , Thanksgiving Day, 1922. NU vs. Notre Dame. View looking west to 10th st.
Nebraska Field
Final game on second , Thanksgiving Day, 1922. NU vs. Notre Dame. View looking west to 10th st.
Oval stadium with arcades. Architects rendering, 1922.
Memorial Stadium
Oval stadium with arcades. Architects rendering, 1922.
Postcard circa 1970.
Memorial Stadium
Postcard circa 1970.
Aerial view, 2007.
Memorial Stadium
Aerial view, 2007.
Ellen Smith Hall
Ellen Smith Hall
Ellen Smith Hall
Front door, 1929.
Ellen Smith Hall
Front door, 1929.
Current image of Teachers College (now Canfield Administration Building)
Teachers College (Old)
Current image of Teachers College (now Canfield Administration Building)
West facade.
Teachers College (Old)
West facade.
Teachers College (Old)
Teachers College (Old)
Teachers College (Old)
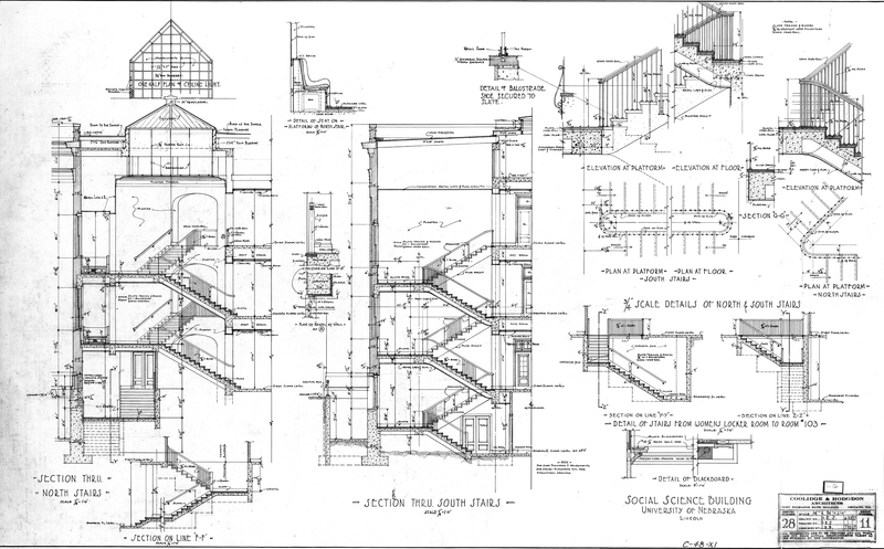
Description: Staircase Details Year: 1917
Social Sciences Hall
Description: Staircase Details Year: 1917
Description: Elevation Details Year: 1917
Social Sciences Hall
Description: Elevation Details Year: 1917
Description: Elevation Details Year: 1917
Social Sciences Hall
Description: Elevation Details Year: 1917
Description: East Elevation and Building Sections Year: 1917
Social Sciences Hall
Description: East Elevation and Building Sections Year: 1917
Description: North, South and West Elevations Year: 1917
Social Sciences Hall
Description: North, South and West Elevations Year: 1917
Description: Third Floor Plan Year: 1917
Social Sciences Hall
Description: Third Floor Plan Year: 1917
Description: Second Floor Plan Year: 1917
Social Sciences Hall
Description: Second Floor Plan Year: 1917
Description: First Floor Plan Year: 1917
Social Sciences Hall
Description: First Floor Plan Year: 1917
Description: Basement Floor Plan Year: 1917
Social Sciences Hall
Description: Basement Floor Plan Year: 1917
West entry and facade.
Social Sciences Hall
West entry and facade.
(now CBA)south facade and lawn.
Social Sciences Hall
(now CBA)south facade and lawn.
South Facade
Social Sciences Hall
South Facade
Social Sciences Hall
Social Sciences Hall
Social Sciences Hall