Skip to main content
Advanced Search
UNL Historic Buildings
City Campus 1896-1909
City Campus 1909-1939
City Campus 1940-1965
East Campus 1896-1914
Advanced Search
Advanced Search
Historic Buildings - City Campus (1869-1909)
Title
Historic Buildings - City Campus (1869-1909)
Items
Showing 26 to 50 of 116 results
Page
of 5
Created
Resource class
Title
Ascending
Descending
Sort
Advanced search
Museum (Old)
1970 Demolition
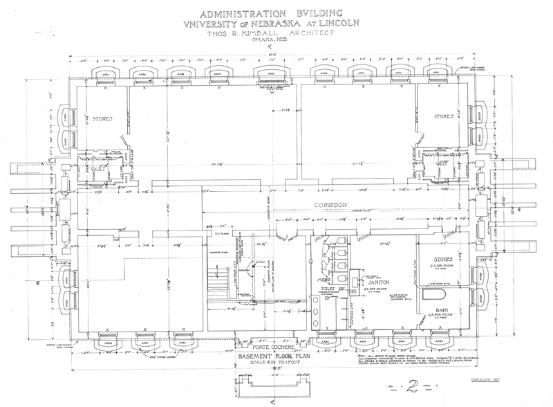
Administration Building (Old) Building Plans
Elevation Details Year: 1905
Administration Building (Old) Building Plans
Building Section Year: 1905
Administration Building (Old) Building Plans
Building Section Year: 1905
Administration Building (Old) Building Plans
North Elevation Year: 1905
Administration Building (Old) Building Plans
South Elevation Year: 1905
Administration Building (Old) Building Plans
West Elevation Year: 1905
Administration Building (Old) Building Plans
Second Floor Plan Year: 1905
Administration Building (Old) Building Plans
First Floor Plan Year: 1905
Administration Building (Old) Building Plans
Basement Floor Plan Year: 1905
Administration Building (Old)
Postcard View Image
Administration Building (Old)
West entrance.
Administration Building (Old)
Administration Building (Old)
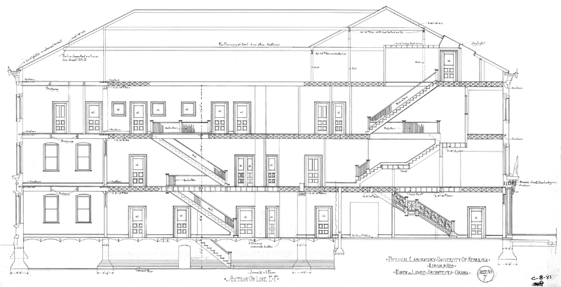
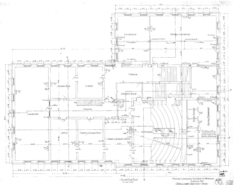
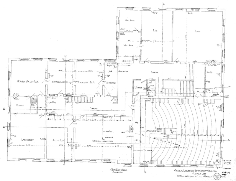
Brace Laboratory of Physics Building Plans
Building Section Year: 1904
Brace Laboratory of Physics Building Plans
Building Section Year: 1904
Brace Laboratory of Physics Building Plans
Building Section Year: 1904
Brace Laboratory of Physics Building Plans
East Elevation Year: 1904
Brace Laboratory of Physics Building Plans
South Elevation Year: 1904
Brace Laboratory of Physics Building Plans
Front Elevation Year: 1904
Brace Laboratory of Physics Building Plans
Third Floor Plan Year: 1904
Brace Laboratory of Physics Building Plans
Second Floor Plan Year: 1904
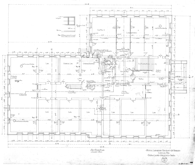
Brace Laboratory of Physics Building Plans
First Floor Plan Year: 1904
Brace Laboratory of Physics
Current image of
Brace Laboratory of Physics
Brace Laboratory of Physics
Brace Laboratory of Physics
East Facade
Showing 26 to 50 of 116 results
Page
of 5